Explore the Aspen

or call 855-552-8343 to talk to a Project Coordinator

Overstock Sale!

Standard Price: $69,990

Overstock Price: $58,990

Series: Highland

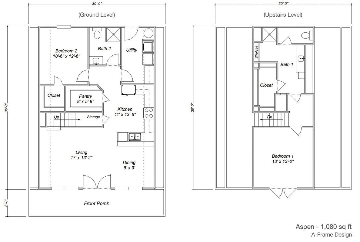
Bedrooms / Bathrooms: 2 / 2

Front Porch: Included

Garage Option: N/A

budget home kits

Home Kit Features

Add Ons

budget home kits

What’s Included

As you would expect, the most common question we get is, “What comes in the kit?” The total package is made up of ALL OF THESE PACKAGES — several smaller groups of the highest quality steel components on the market, cut and formed specifically for the home design you choose. From the outside framing and siding, to the roofing and trim, to the interior wall framing, we’ve got you covered.

budget home kits

Other Highland Kits

  • Ponderosa

    Overstock Sale!