Explore the Wyoming
or call 855-552-8343 to talk to a Project Coordinator
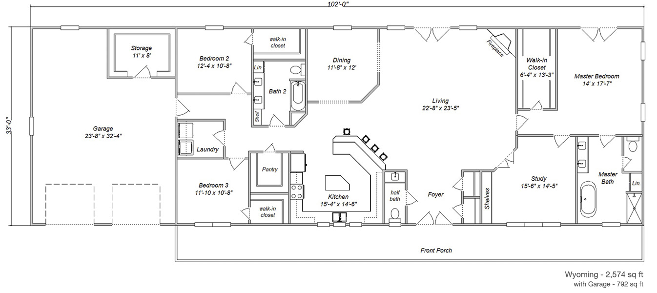
Standard Price: $85,990
Series: Estate
Bedrooms / Bathrooms: 3 / 2.5
Front Porch: Included
Garage Option: $19,990
budget home kits
Home Kit Features 
Add Ons
budget home kits
What’s Included
As you would expect, the most common question we get is, “What comes in the kit?” The total package is made up of ALL OF THESE PACKAGES — several smaller groups of the highest quality steel components on the market, cut and formed specifically for the home design you choose. From the outside framing and siding, to the roofing and trim, to the interior wall framing, we’ve got you covered.











